Studie Wohnhaus Heinrich
2020
Ersatzneubau MFH in der Stadt Zürich
Privat
Ersatzneubau MFH in der Stadt Zürich
Privat
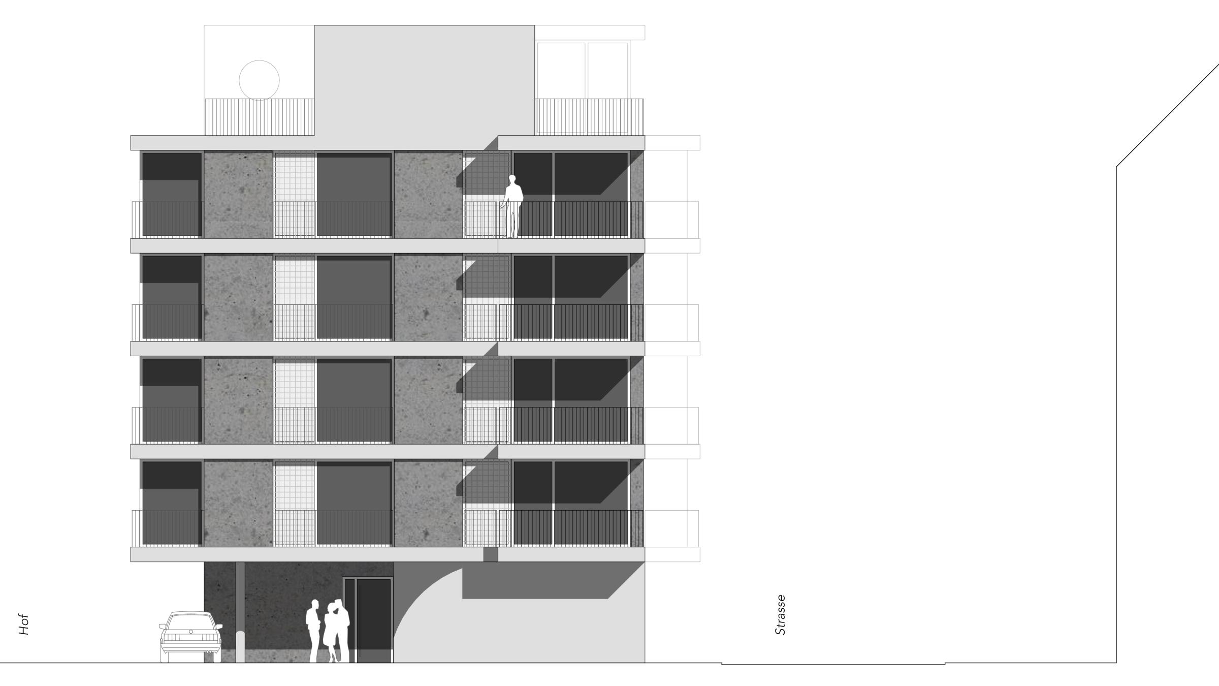
Als Teil einer Blockrandbebauung muss die sanierungsbedürftige Bausubstanz erneuert werden. PEK ARCHITEKTEN wurden damit beauftragt einen Neubau zu projektieren. Das Wohnhaus mit 12 Klein- und einer grosszügigen Attikawohnung beinhaltet ein optisch abgesetztes Sockelgeschoss und sich repetierende, darüberliegende Wohngeschosse. Die Fassade referenziert auf die ortstypische Fassadenerscheinung mit Klinkersteinen, Naturstein, Glasbaustein und adaptiert diese Optik in einem neuen Gewand. Im Erdgeschoss werden Gewerberäumlichkeiten eingeplant.